Zwangsversteigerung: 1130 Wien Gobergasse 88 ident Cuviergasse 42 - Eigentumswohnung

Ortsanfang    Ortsanfang  


Wien  ♦  Niederösterreich  ♦  Burgenland  ♦  Oberösterreich  ♦  Salzburg  ♦  Tirol  ♦  Vorarlberg  ♦  Steiermark  ♦  Kärnten


Information   Details
Edikt: Versteigerung (22.04.2026)
Gericht - Aktenzeichen: BG Hietzing (012) - 4 E 17/25h
Liegenschaftsadresse: 1130 Wien Gobergasse 88 ident Cuviergasse 42
Kategorie: Eigentumswohnung
Objektbezeichnung: Wohnung W 3
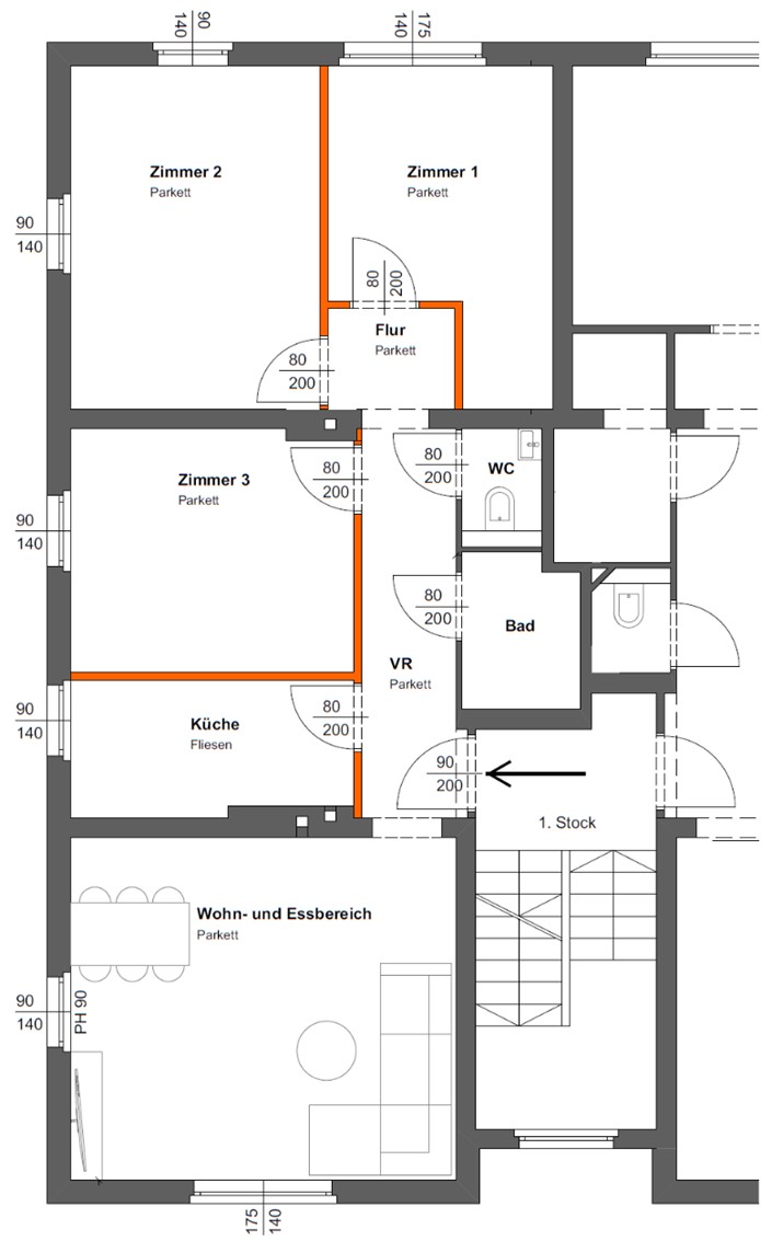
Beschreibung: Die ggst. Eckliegenschaft EZ 3287 besteht aus den GST 896/35 und 896/36, ist in leichter Hanglage gelegen, polygonal ausgestaltet und verfügt lt. Grundbuch über eine Grundstücksfläche von insgesamt 702 m². Auf der Liegenschaft befindet sich ein Anfang der 60er Jahre errichtetes Wohnhaus, welches über ein Kellergeschoß, 2 Geschoße über Niveau (EG und 1. OG) und einen Rohdachboden verfügt. Die vertikale Erschließung erfolgt eine Stiege. Ein Aufzug ist nicht vorhanden. Das Wohnhaus umfasst 4 Wohnungen sowie 4 Garagen. Die ggst. Wohnung befindet sich im 1. Stock und ist sowohl straßen- als auch hofseitig ausgerichtet. Ein Aufzug ist nicht vorhanden. Die ggst. Wohnung verfügt über eine Wohnnutzfläche von rd. 79 m². Die Wohnung verfügt über einen Vorraum, eine Diele, ein getrenntes Bad und WC und 4 Zimmer. Alle Räumlichkeiten sind vom Vorraum zentral begehbar. Die Wohnung ist durchgestreckt und alle Zimmer sind vom Vorraum bzw. der Diele zentral begehbar. Die ggst. Wohnung ver-fügt damit über eine leicht überdurchschnittliche Größe und weist eine ansprechende Konfiguration auf. Die ggst. Wohnung befindet sich insgesamt in einem ordentliche-sehr guten Erhaltungszustand. Die Ausstattung (Technik/ Oberflächenmaterialen, etc.) entspricht insgesamt den Vorstellungen/ Erwartungen an modernes Wohnen. Tlw. sind die Oberflächen verschmutzt bzw. beschmiert und sind auch diverse kleinere Schäden ersichtlich. In der Wohnung gibt es sehr viele Steckdosen.
Grundstücksgröße: 702 m²
Objektgröße: 78,95 m²
Schätzwert: 352.000,00
geringstes Gebot: 176.000,00
Vadium: 35.200,00
Langgutachten: GA 1130 Wien, Gobergasse 88_final.pdfGA 1130 Wien, Gobergasse 88_final.pdf  
Lageplan: lage.jpglage.jpg  
Grundriss: grw3.jpggrw3.jpg  
Fotos: 3.jpg3.jpg   4.jpg4.jpg   5.jpg5.jpg   6.jpg6.jpg   7.jpg7.jpg   8.jpg8.jpg   9.jpg9.jpg   10.jpg10.jpg   1.jpg1.jpg  
Direktlink: https://edikte.justiz.gv.at/    (Eingebundene Vorschaubilder sind embedded content von edikte.justiz.gv.at; die Links verweisen direkt auf die entsprechende externe Seite.)


Das Maximum herausholen!
Die besten Sparzinsen Österreichs.
Fix (Festgeld) oder flexibel (täglich fällig).
Kostenloser Online-Zinsvergleich.
04/2026: Sparzinsen
  Top Versicherungsschutz für Ihre Immobilie.
Durch online-Preisvergleich zur besten Eigenheimversicherung.
Top aktuelle Angebote: Stand 04/2026
Online-Test: Eigenheimversicherung
  Ideal für Beträge von 1.000 € bis 75.000 €
Der Ratenkredit aus dem Internet.
Einfach Zuhause die Anbieter vergleichen.
Abschluss online - schnell am Konto!
Hier: Kreditrate und Zinssatz berechnen!

Ortsende Wien  ♦  Niederösterreich  ♦  Burgenland  ♦  Oberösterreich  ♦  Salzburg  ♦  Tirol  ♦  Vorarlberg  ♦  Steiermark  ♦  Kärnten   

| Impressum  |  Datenschutz |