Zwangsversteigerung: 8251 Waldbach-Mönichwald Karnerviertel 55 - Einfamilienhaus

Ortsanfang    Ortsanfang  


Wien  ♦  Niederösterreich  ♦  Burgenland  ♦  Oberösterreich  ♦  Salzburg  ♦  Tirol  ♦  Vorarlberg  ♦  Steiermark  ♦  Kärnten


Information   Details
Edikt: Zuschlag mit Überbot
Gericht - Aktenzeichen: BG Fürstenfeld (622) - 21 E 1/25z
Liegenschaftsadresse: 8251 Waldbach-Mönichwald Karnerviertel 55
Kategorie: Einfamilienhaus
Objektbezeichnung: Gebäude
Meistbot: 56.000,00
Überbot Frist: 14 Tage
Überbot Minimum: 70.000,00
Langgutachten: GA_Hausbauer - Cordenons.pdf  
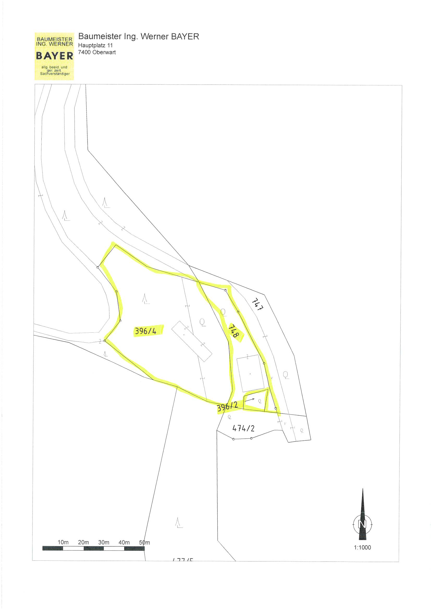
Lageplan: MB.jpgMB.jpg  
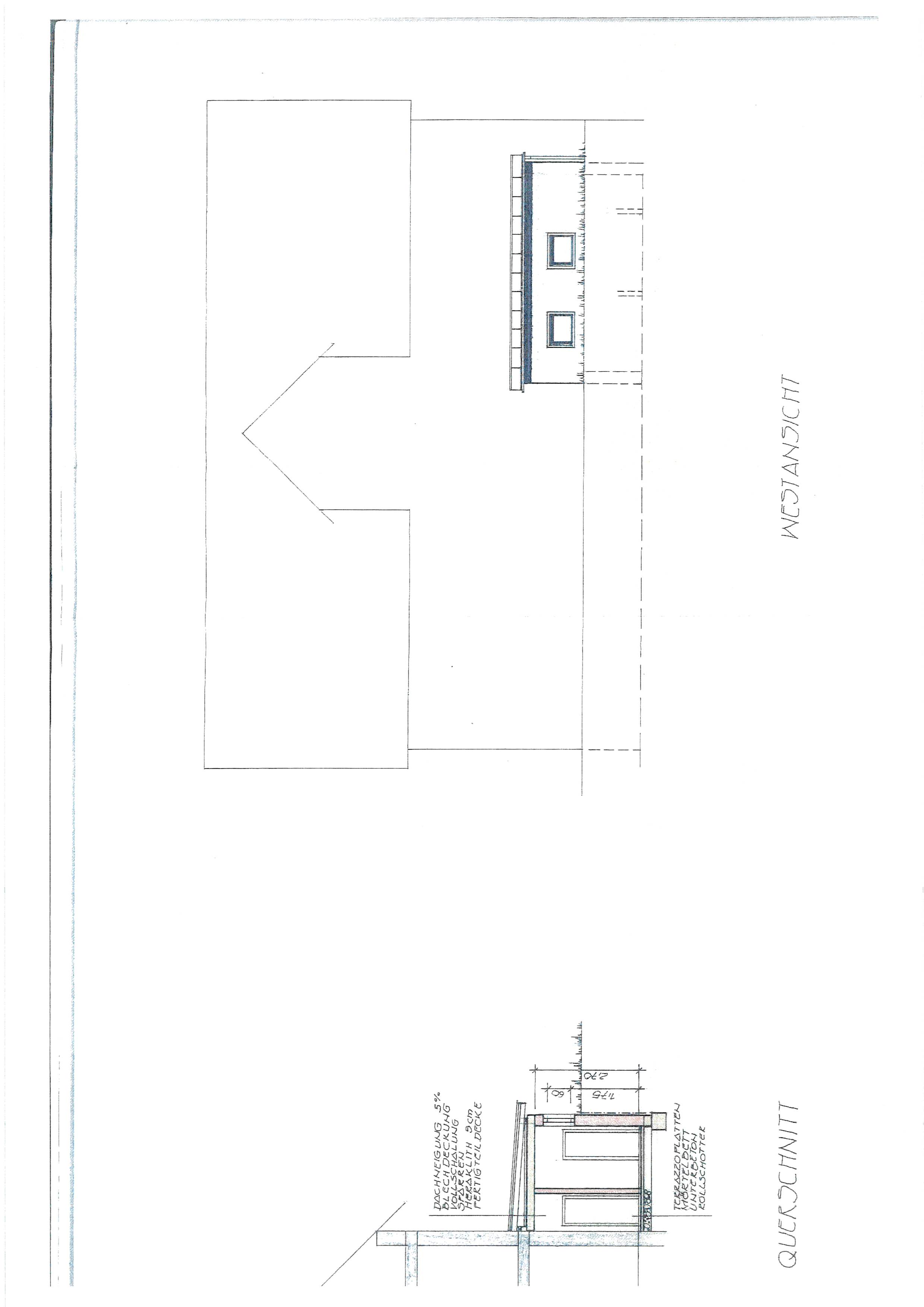
Grundriss: Plan Zubau WC_1.jpgPlan Zubau WC_1.jpg   Plan Zubau WC_2.jpgPlan Zubau WC_2.jpg   Plan Zubau WC_3.jpgPlan Zubau WC_3.jpg   Plan Zubau WC_4.jpgPlan Zubau WC_4.jpg   EP DGAusbau_1.jpgEP DGAusbau_1.jpg   EP DGAusbau_2.jpgEP DGAusbau_2.jpg  
Fotos: 01 Außenaufnahme.JPG01 Außenaufnahme.JPG   02 Außenaufnahme.JPG02 Außenaufnahme.JPG   03 OG Zimmer1.JPG03 OG Zimmer1.JPG   04 OG Zimmer 2.JPG04 OG Zimmer 2.JPG   05 OG Zimmer 3.JPG05 OG Zimmer 3.JPG   06 OG Zimmer 4.JPG06 OG Zimmer 4.JPG   07 OG Zimmer 5.JPG07 OG Zimmer 5.JPG   08 DG Dachboden.JPG08 DG Dachboden.JPG   09 EG Küche.JPG09 EG Küche.JPG   10 EG Kabinett.JPG10 EG Kabinett.JPG   11 EG HerrenWC.JPG11 EG HerrenWC.JPG   12 EG DamenWC.JPG12 EG DamenWC.JPG   13 EG Küche.JPG13 EG Küche.JPG   14 EG Zimmer.JPG14 EG Zimmer.JPG   15 KG Gewölbekeller.JPG15 KG Gewölbekeller.JPG   16 KG Kellerraum.JPG16 KG Kellerraum.JPG   17 KG Vorkeller.JPG17 KG Vorkeller.JPG   18 Außenaufnahme Mehrzweckhalle.JPG18 Außenaufnahme Mehrzweckhalle.JPG   19 Mehrzweckhalle innen.JPG19 Mehrzweckhalle innen.JPG   20 Rampe mit Stiege_Zugang zum Haus.JPG20 Rampe mit Stiege_Zugang zum Haus.JPG   21 Breingrabenbach.JPG21 Breingrabenbach.JPG   22 Brücke im Nahbereich.JPG22 Brücke im Nahbereich.JPG  
Direktlink: https://edikte.justiz.gv.at/    (Eingebundene Vorschaubilder sind embedded content von edikte.justiz.gv.at; die Links verweisen direkt auf die entsprechende externe Seite.)


Top Versicherungsschutz für Ihre Immobilie.
Durch online-Preisvergleich zur besten Eigenheimversicherung.
Top aktuelle Angebote: Stand 10/2025
Online-Test: Eigenheimversicherung
  Stromkosten sparen durch Anbieterwechsel!
Großer Strompreisvergleich für Österreich.
Stromanbieter online vergleichen und
in nur 3 Minuten Vertrag abschließen.
Strompreisvergleich online: Strom
  Das Maximum herausholen!
Die besten Sparzinsen Österreichs.
Fix (Festgeld) oder flexibel (täglich fällig).
Kostenloser Online-Zinsvergleich.
10/2025: Sparzinsen

Ortsende Wien  ♦  Niederösterreich  ♦  Burgenland  ♦  Oberösterreich  ♦  Salzburg  ♦  Tirol  ♦  Vorarlberg  ♦  Steiermark  ♦  Kärnten   

| Impressum  |  Datenschutz |