Zwangsversteigerung: 6782 Silbertal Silbertalerstraße 80 - Sonstiges

Ortsanfang    Ortsanfang  


Wien  ♦  Niederösterreich  ♦  Burgenland  ♦  Oberösterreich  ♦  Salzburg  ♦  Tirol  ♦  Vorarlberg  ♦  Steiermark  ♦  Kärnten


Information   Details
Edikt: Versteigerung (20.05.2026)
Gericht - Aktenzeichen: BG Bludenz (900) - 12 E 19/25y
Liegenschaftsadresse: 6782 Silbertal Silbertalerstraße 80
Kategorie: Sonstiges
Objektbezeichnung: gemischt genutzte Liegenschaft
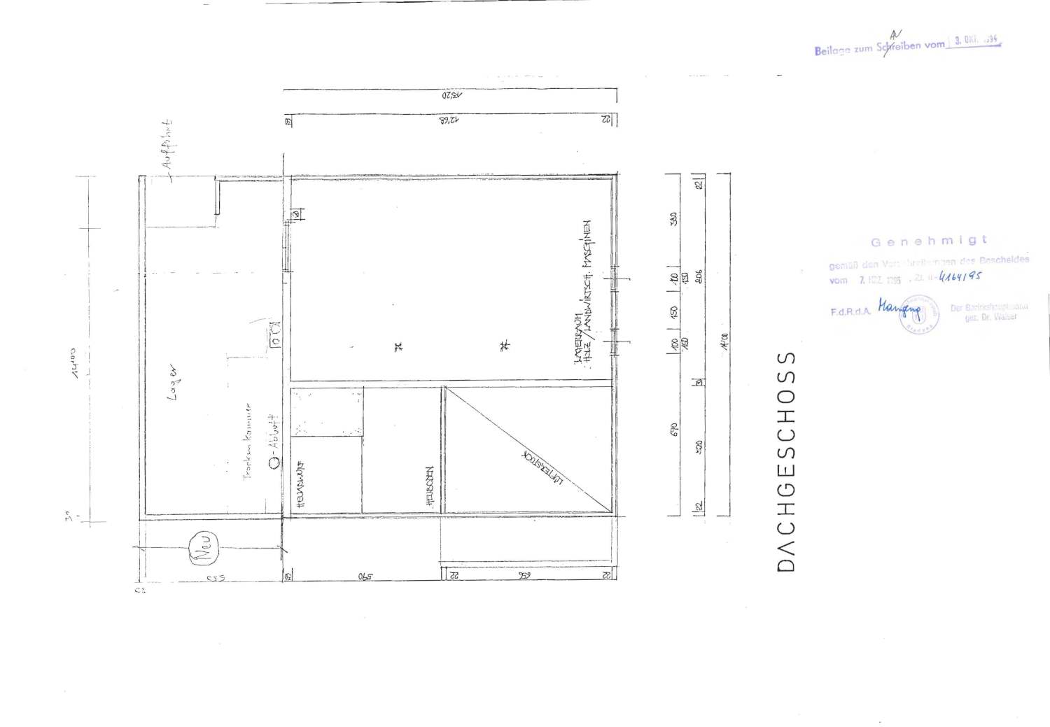
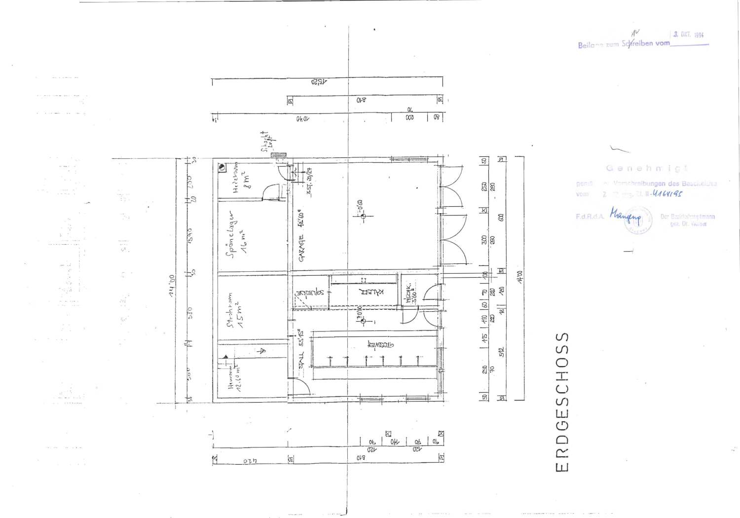
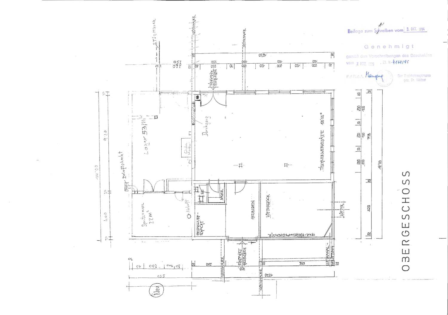
Beschreibung: Die gegenständliche Liegenschaft EZ 55 KG Silbertal befindet sich in der Talschaft Montafon, Gemeinde Silbertal, unweit der Gemeindegrenze zu Schruns und Bartholomäberg, mit Ausnahme von Gst. 197, im Flächenverbund unmittelbar nordseitig angrenzend der Landesstraße L 95 Silbertalerstraße, in ruhiger Lage. Die Entfernung zum Gemeindezentrum Silbertal beträgt ca. 1,75 km, zum Gemeindezentrum Schruns ca. 2,25 km, zum Anschluss der A 14 Rheintalautobahn ca. 11 km. Gst. 197 befindet sich in der talseitig gegenüberliegenden Hanglage, Parzelle Höfle, und ist nordseitig ausgerichtet. Die Nutzung der Liegenschaft erfolgt durch ein Wohnhaus, ein Tischlereigebäude, einen Stall, eine Garage sowie land- und fortswirtschaftlich.
Grundstücksgröße: 43.318 m²
Schätzwert: 570.000,00
geringstes Gebot: 287.500,00
Vadium: 57.500,00
mitzuversteigerndes Zubehör: drei Einbauküchen und diverse Möbeleinbauten
Wert des Zubehörs: 5.000,00
Langgutachten: Verkehrswertgutachten.pdfVerkehrswertgutachten.pdf   Beilagen.pdfBeilagen.pdf  
Lageplan: Ortsplan_Silbertal_481.JPGOrtsplan_Silbertal_481.JPG   Übersicht DKM_Luftbild_483.JPGÜbersicht DKM_Luftbild_483.JPG   Übersicht Flächenwidmung_484.JPGÜbersicht Flächenwidmung_484.JPG   Übersicht  Gefahrenzone_482.JPGÜbersicht  Gefahrenzone_482.JPG  
Grundriss: Wohnhaus Grundriss_Ansichten_Schnitt_480.JPGWohnhaus Grundriss_Ansichten_Schnitt_480.JPG   Tischlereigebäude Erdgeschoss_477.JPGTischlereigebäude Erdgeschoss_477.JPG   Tischlereigebäude Obergeschoss_478.JPGTischlereigebäude Obergeschoss_478.JPG   Tischlereigebäude Dachgeschoss_476.JPGTischlereigebäude Dachgeschoss_476.JPG  
Fotos: Zufahrt 01.JPGZufahrt 01.JPG   Zufahrt 02.JPGZufahrt 02.JPG   Wohnhaus und Tischlereigebäude.JPGWohnhaus und Tischlereigebäude.JPG   Wohnhaus 01.JPGWohnhaus 01.JPG   Wohnhaus 02.JPGWohnhaus 02.JPG   Tischlereigebäude 01.JPGTischlereigebäude 01.JPG   Tischlereigebäude 02.JPGTischlereigebäude 02.JPG   Tischlereigebäude 03.JPGTischlereigebäude 03.JPG   Stallgebäude 01.JPGStallgebäude 01.JPG   Stallgebäude 02.JPGStallgebäude 02.JPG  
Direktlink: https://edikte.justiz.gv.at/    (Eingebundene Vorschaubilder sind embedded content von edikte.justiz.gv.at; die Links verweisen direkt auf die entsprechende externe Seite.)


Geld sparen durch Gaspreisvergleich.
Gasanbieter vergleichen, wechseln und
damit mehrere hundert Euro sparen.
Kostenlos und unverbindlich - alles online.
Jetzt österreichweit Gaspreise vergleichen.
  Supergünstig zum Eigenheim!
Über 60 Anbieter im kostenlosen
Online‑Kreditvergleich (Stand 04/2026)
Die besten Angebote - fix und variabel.
Top-Konditionen - schnell am Konto!
  Autoversicherung online 04/2026.
Anbieter in ganz Österreich vergleichen
und damit bis zu 700 Euro sparen.
Versicherung bequem online abschließen.
Jetzt Prämie sparen: Autoversicherung

Ortsende Wien  ♦  Niederösterreich  ♦  Burgenland  ♦  Oberösterreich  ♦  Salzburg  ♦  Tirol  ♦  Vorarlberg  ♦  Steiermark  ♦  Kärnten   

| Impressum  |  Datenschutz |