Zwangsversteigerung: 1180 Wien Gentzgasse 144 - Sonstiges

Ortsanfang    Ortsanfang  


Wien  ♦  Niederösterreich  ♦  Burgenland  ♦  Oberösterreich  ♦  Salzburg  ♦  Tirol  ♦  Vorarlberg  ♦  Steiermark  ♦  Kärnten


Information   Details
Edikt: Versteigerung (29.04.2026)
Gericht - Aktenzeichen: BG Döbling (015) - 26 E 1/25a
Liegenschaftsadresse: 1180 Wien Gentzgasse 144
Kategorie: Sonstiges
Objektbezeichnung: unfertiger DG-Ausbau, Stellpl
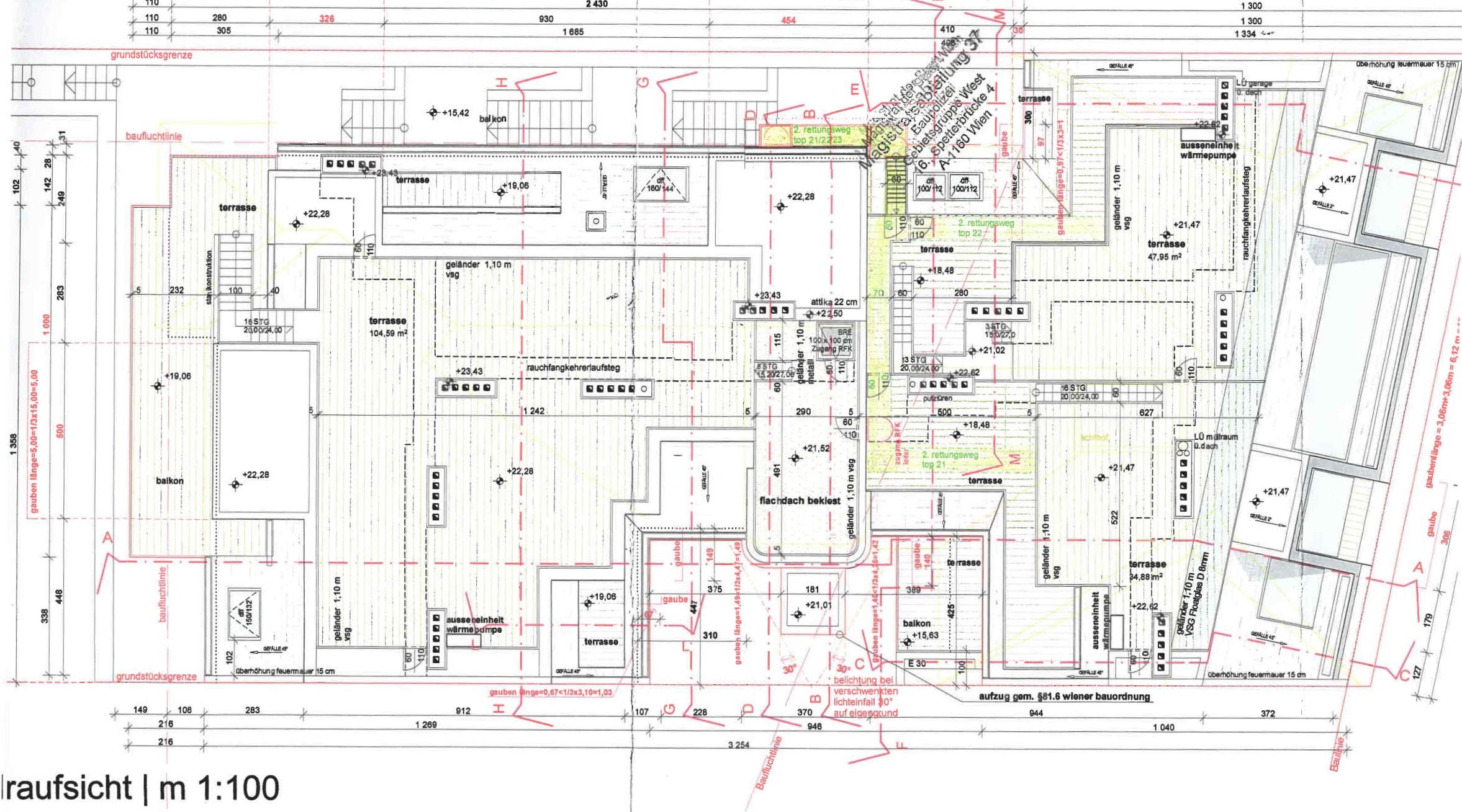
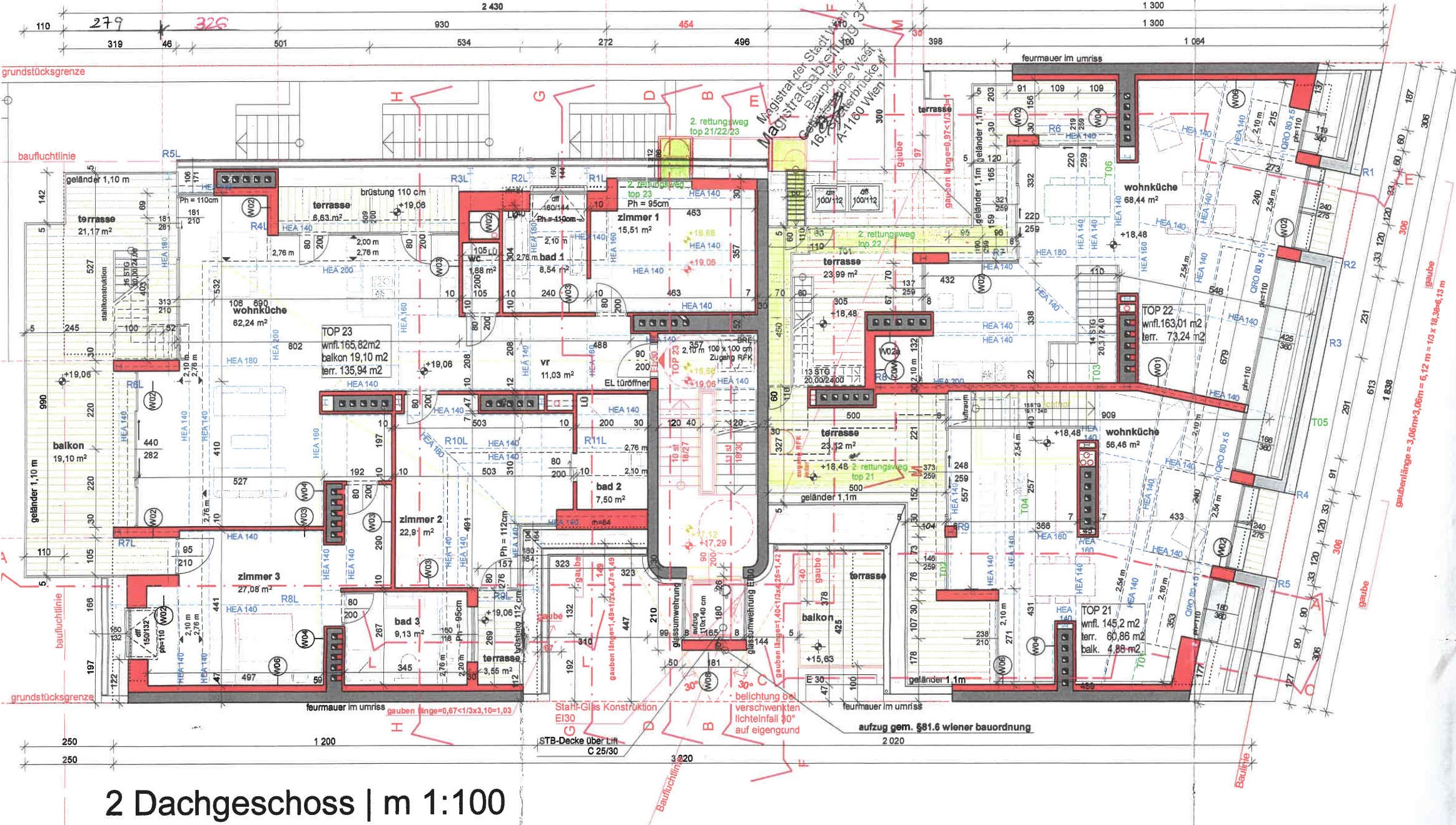
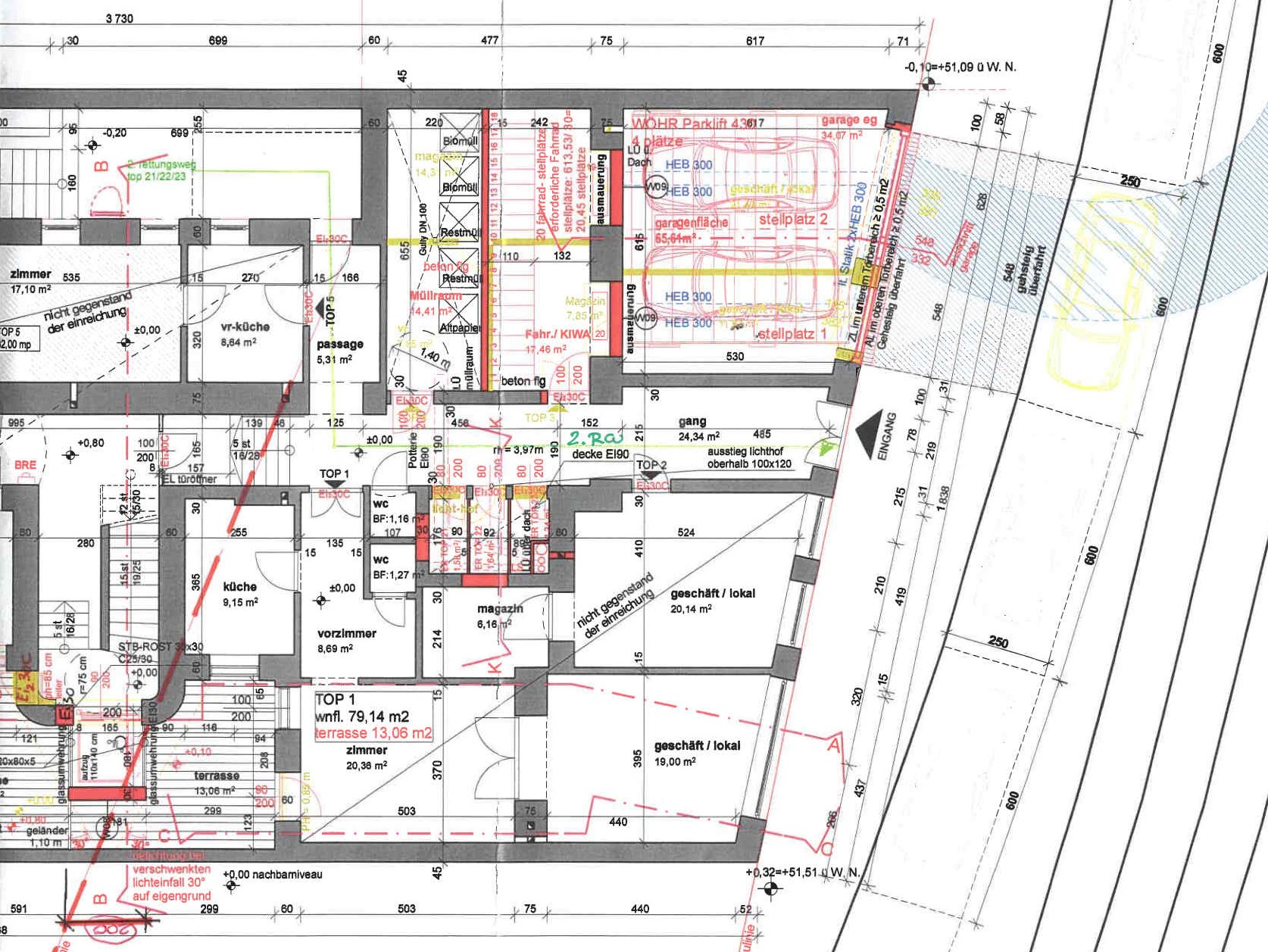
Beschreibung: Begonnener, nicht fertig gestellter Dachgeschoßaus-/aufbau. Im Grundbuch 3 Wohnungen, in Natur begonnene Errichtung von 5 Wohnungen. 4 Stellplätze (Stapelparker), Umbau aus eh. Geschäftslokal nicht begonnen. Gemeinsame Versteigerung der im Grundbuch erfassten WE-Einheiten, da diese in Natur vom derzeitigen grundbücherlichen Umfang abweichend kleiner errichtet wurden und in ihrer Fläche zwei weitere, im Grundbuch nicht eingetragene, Wohnungen errichtet wurden. Unfertig, tw. bereits schadhaft. Feuchtigkeitsschäden aufgrund der in Teilen undichten Dachausführung an den Objekten im Dachgeschoß sowie den darunter liegenden Geschoßen.
Objektgröße: 474,04 m²
Schätzwert: 2.102.000,00
geringstes Gebot: 1.051.000,00
Vadium: 210.200,00
Langgutachten: GA 1180 Gentzg 144.pdfGA 1180 Gentzg 144.pdf   Beilagen zum Gutachten.pdfBeilagen zum Gutachten.pdf  
Lageplan: Karte-14.jpgKarte-14.jpg  
Grundriss: A GR 1 DG.jpgA GR 1 DG.jpg   A GR 2 DG.jpgA GR 2 DG.jpg   A GR DD.jpgA GR DD.jpg   A GR EG.jpgA GR EG.jpg   A GR KG.jpgA GR KG.jpg   E GR 1 DG.jpgE GR 1 DG.jpg   E GR 2 DG.jpgE GR 2 DG.jpg   E Dachdraufsicht.jpgE Dachdraufsicht.jpg   E GR EG.jpgE GR EG.jpg   E GR KG.jpgE GR KG.jpg   A Schnitt A.jpgA Schnitt A.jpg   A Schnitte.jpgA Schnitte.jpg  
Fotos: DSC02978kl.jpgDSC02978kl.jpg   GA - 1.jpgGA - 1.jpg   GA - 2.jpgGA - 2.jpg   GA - 3.jpgGA - 3.jpg   GA - 4.jpgGA - 4.jpg   GA - 5.jpgGA - 5.jpg   GA - 6.jpgGA - 6.jpg   GA - 7.jpgGA - 7.jpg   GA - 8.jpgGA - 8.jpg   GA - 9.jpgGA - 9.jpg   GA - 10.jpgGA - 10.jpg   GA - 11.jpgGA - 11.jpg   GA - 12.jpgGA - 12.jpg   GA - 13.jpgGA - 13.jpg   GA - 14.jpgGA - 14.jpg   GA - 15.jpgGA - 15.jpg   GA - 16.jpgGA - 16.jpg   GA - 17.jpgGA - 17.jpg   GA - 18.jpgGA - 18.jpg   GA - 19.jpgGA - 19.jpg   GA - 20.jpgGA - 20.jpg   GA - 21.jpgGA - 21.jpg   GA - 22.jpgGA - 22.jpg   GA - 23.jpgGA - 23.jpg   GA - 24.jpgGA - 24.jpg   GA - 25.jpgGA - 25.jpg   GA - 26.jpgGA - 26.jpg   GA - 27.jpgGA - 27.jpg   GA - 28.jpgGA - 28.jpg   GA - 29.jpgGA - 29.jpg   GA - 30.jpgGA - 30.jpg  
Direktlink: https://edikte.justiz.gv.at/    (Eingebundene Vorschaubilder sind embedded content von edikte.justiz.gv.at; die Links verweisen direkt auf die entsprechende externe Seite.)


Stromkosten sparen durch Anbieterwechsel!
Großer Strompreisvergleich für Österreich.
Stromanbieter online vergleichen und
in nur 3 Minuten Vertrag abschließen.
Strompreisvergleich online: Strom
  Ideal für Beträge von 1.000 € bis 75.000 €
Der Ratenkredit aus dem Internet.
Einfach Zuhause die Anbieter vergleichen.
Abschluss online - schnell am Konto!
Hier: Kreditrate und Zinssatz berechnen!
  Supergünstig zum Eigenheim!
Über 60 Anbieter im kostenlosen
Online‑Kreditvergleich (Stand 04/2026)
Die besten Angebote - fix und variabel.
Top-Konditionen - schnell am Konto!

Ortsende Wien  ♦  Niederösterreich  ♦  Burgenland  ♦  Oberösterreich  ♦  Salzburg  ♦  Tirol  ♦  Vorarlberg  ♦  Steiermark  ♦  Kärnten   

| Impressum  |  Datenschutz |