Zwangsversteigerung: 3822 Karstein an der Thaya Griesbach 16 - land- und forstwirtschaftlich genutzte Liegenschaft

Ortsanfang    Ortsanfang  


Wien  ♦  Niederösterreich  ♦  Burgenland  ♦  Oberösterreich  ♦  Salzburg  ♦  Tirol  ♦  Vorarlberg  ♦  Steiermark  ♦  Kärnten


Information   Details
Edikt: Versteigerung (28.04.2026)
Gericht - Aktenzeichen: BG Waidhofen an der Thaya (211) - 7 E 763/25x
Liegenschaftsadresse: 3822 Karstein an der Thaya Griesbach 16
Kategorie: land- und forstwirtschaftlich genutzte Liegenschaft
Objektbezeichnung: Ldw. Liegenschaft mit Hallen
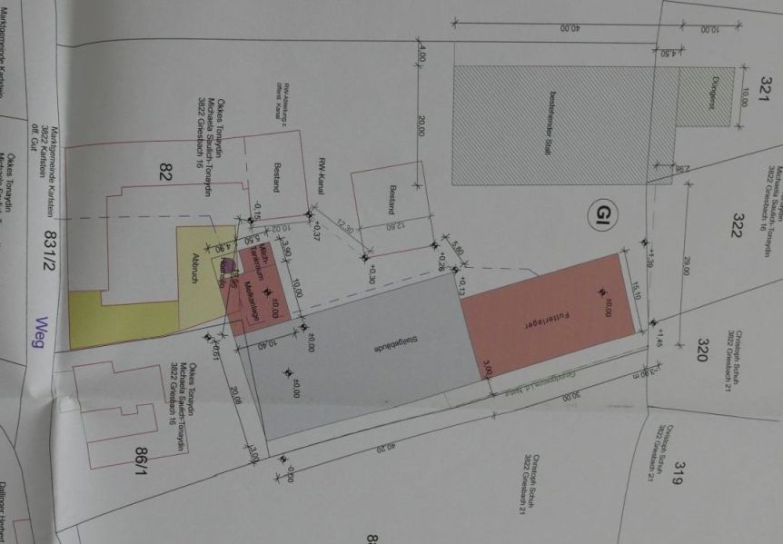
Beschreibung: Auf dem Grundstück mit der Nr. 82 befinden sich im südlichen Bereich zwei landwirtschaftliche Hallengebäude und ein Schlachthaus auf Grünlandwidmung. Das Hallengebäude wurde aufgrund der Baubewilligung aus dem Jahr 2010 als Schafstallgebäude errichtet, die Fertigstellungsanzeige erfolgte am 13.12.2018. Südlich besteht ein Zubau einer Schlachthalle (baulich angebaut an das Schafstallgebäude) Das Hallengebäude ist als einfache Stahlkonstruktion errichtet, die Außenwände sind mit Trapezblech verkleidet, das Dach ist als Satteldach ausgebildet. Das Hallengebäude kann als landwirtschaftliches Wirtschaftsgebäude genutzt werden. Der Zubau ist in Massivbauweise südlich der Halle west errichtet, die Baubewilligung erfolgte mit Bescheid vom 30.07.2019 (Baubeginnsanzeige erfolgte, somit ist eine Fertigstellung bis 14.08.2024 erforderlich). Das Gebäude besteht aus einem Büroraum, Sanitärräumen, Schlachträumen und einem Kühlraum. Der Kühlraum ist mit Kühlpaneelen ausgekleidet, in den Schlachträumen sind Deckenschienenkonstruktionen vorhanden. Die mobilen Ausstattungen sind gemäß beiliegenden Gutachten vom Sachverständigen Ing. Michael Pinczolits vom 15.05.2022 beschrieben und bewertet (Beilage 5). Für die Nutzung des Schlachthauses liegt derzeit keine Benützungsbewilligung vor. Das Gebäude wurde aufgrund der Baubewilligung vom 26.01.2012 (Neubau eines Schafstalles und einer Düngerlagerstätte) errichtet. Das Hallengebäude ist als einfache Stahlkonstruktion errichtet, die Außenwände sind mit Trapezblech verkleidet, das Dach ist als Satteldach ausgebildet. Die baubehördliche Bewilligung ist mangels fehlender Baubeginnsanzeige sowie fehlender Fertigstellungsanzeige abgelaufen, somit besteht kein behördlicher Konsens für den Bestand und die Nutzung des Hallengebäudes und der Düngerlagerstätte. Im südlichen Bereich des Hallengebäudes kann ein Grundstücksgrenzüberbau auf die Nachbarliegenschaft EZ 25 Grundstück Nr. 86/1 (Hofstelle) nicht ausgeschlossen werden. Bauwerksstatische und vermessungstechnische Überprüfungen sowie bautechnische und haustechnische Bauwerksüberprüfungen haben durch den Sachverständigen im Zuge der Befundaufnahme auftragsgemäß nicht stattgefunden (kein bautechnisches Gutachten), die Beschreibung der vorhandenen Bauausführungen erfolgte ausschließlich durch augenscheinliche Befundung des Gebäudebestandes (ohne Bauwerksöffnungen).
Grundstücksgröße: 13.355 m²
Objektgröße: 1.670,00 m²
Schätzwert: 285.000,00
geringstes Gebot: 142.500,00
Vadium: 28.500,00
mitzuversteigerndes Zubehör: Verkehrswert der Fahrnisse gemäß Gutachten vom 15.05.2022: € 24.850,- (beim Schätzwert berücksichtigt)
Wert des Zubehörs: 24.850,00
Langgutachten: GZ-23258-3822_KarlsteinThaya_Griesbach17-a.pdfGZ-23258-3822_KarlsteinThaya_Griesbach17-a.pdf  
Lageplan: Übersicht.jpgÜbersicht.jpg   EZ 210 Lageplan1.jpgEZ 210 Lageplan1.jpg  
Fotos: EZ 210 - Halle ost.JPGEZ 210 - Halle ost.JPG   EZ 210 - Halle west1.JPGEZ 210 - Halle west1.JPG   EZ 210 - Halle1.JPGEZ 210 - Halle1.JPG   EZ 210 - Halle2.JPGEZ 210 - Halle2.JPG   EZ 210 - Halle3.JPGEZ 210 - Halle3.JPG   EZ 210 - Halle4.JPGEZ 210 - Halle4.JPG   EZ 210 - Halle5.JPGEZ 210 - Halle5.JPG   EZ 210 - Halle6.JPGEZ 210 - Halle6.JPG   EZ 210 - Halle8.JPGEZ 210 - Halle8.JPG   EZ 210 - Halle9.JPGEZ 210 - Halle9.JPG  
Direktlink: https://edikte.justiz.gv.at/    (Eingebundene Vorschaubilder sind embedded content von edikte.justiz.gv.at; die Links verweisen direkt auf die entsprechende externe Seite.)


Die Finanzierung für Ihren Hausbau:
Baufinanzierung & Baukredit-Rechner.
Maßgeschneidert und Top-Konditionen.
Schnelle & unbürokratische Abwicklung.
Monatsrate und Zinsen: Online-Rechner
  Das Maximum herausholen!
Die besten Sparzinsen Österreichs.
Fix (Festgeld) oder flexibel (täglich fällig).
Kostenloser Online-Zinsvergleich.
04/2026: Sparzinsen
  Kredit umschulden und Kosten sparen
mit einem Umschuldungskredit.
Egal ob Ratenkredit oder Immobilienkredit.
Kredite zu Top-Konditionen umschulden.
Hier: die neue Kreditrate berechnen!

Ortsende Wien  ♦  Niederösterreich  ♦  Burgenland  ♦  Oberösterreich  ♦  Salzburg  ♦  Tirol  ♦  Vorarlberg  ♦  Steiermark  ♦  Kärnten   

| Impressum  |  Datenschutz |