Zwangsversteigerung: 2640 Gloggnitz Arensteingasse 15 - Einfamilienhaus

Ortsanfang    Ortsanfang  


Wien  ♦  Niederösterreich  ♦  Burgenland  ♦  Oberösterreich  ♦  Salzburg  ♦  Tirol  ♦  Vorarlberg  ♦  Steiermark  ♦  Kärnten


Information   Details
Edikt: Versteigerung (30.04.2026)
Gericht - Aktenzeichen: BG Neunkirchen (233) - 9 E 33/25y
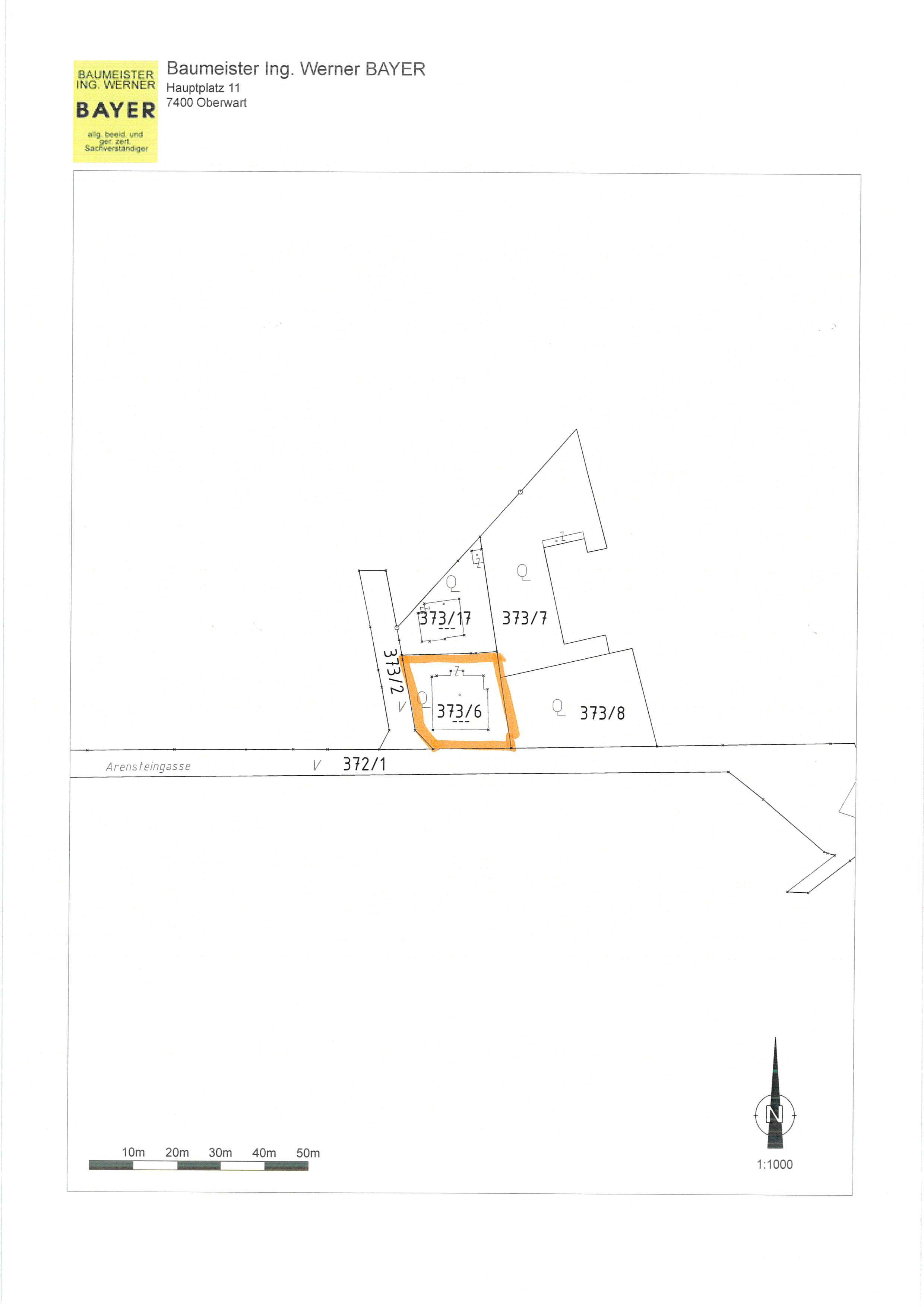
Liegenschaftsadresse: 2640 Gloggnitz Arensteingasse 15
Kategorie: Einfamilienhaus
Objektbezeichnung: Gebäude
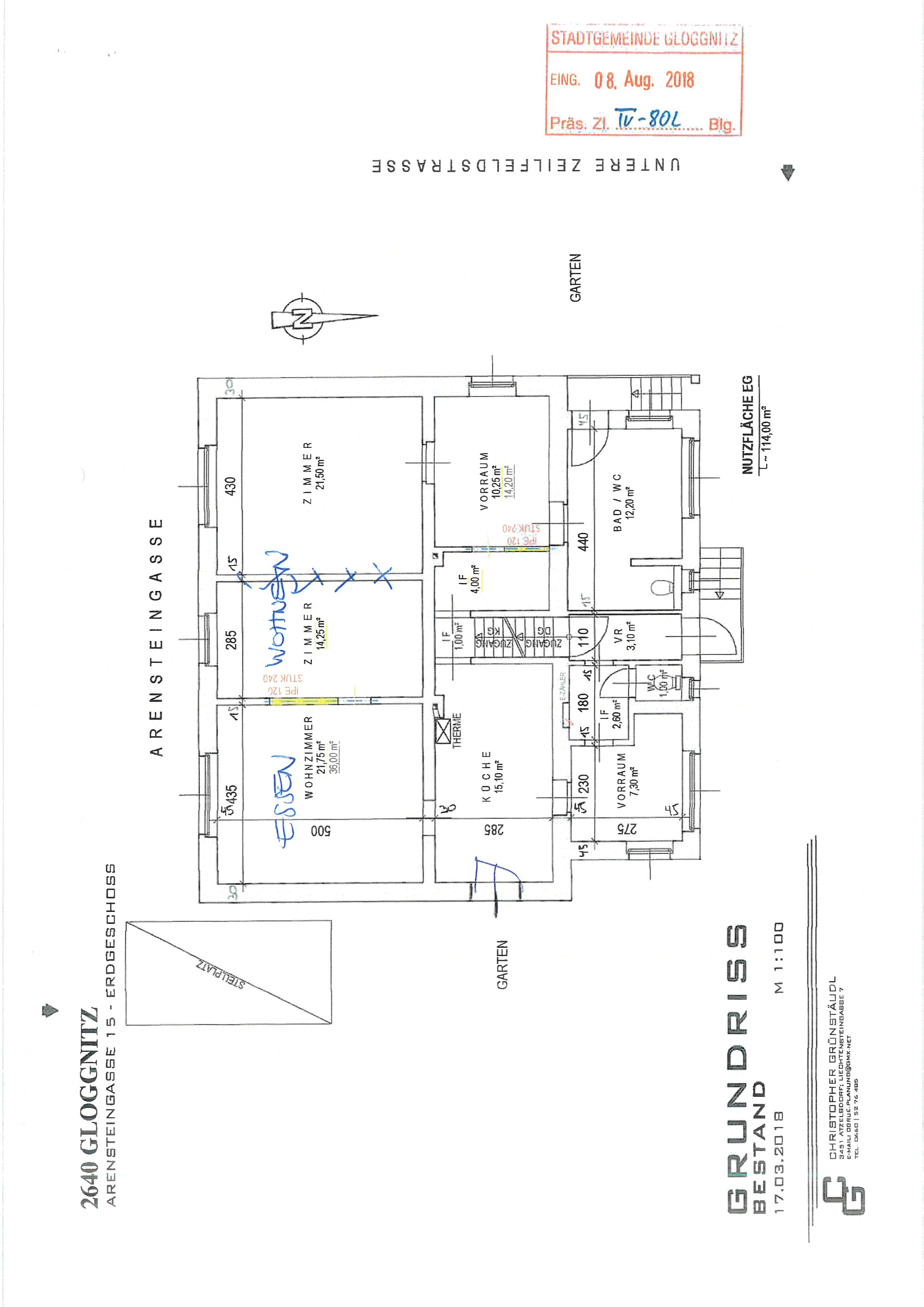
Beschreibung: LAGE: Dieses Grundstück mit dem darauf befindlichen Wohnhaus liegt am Stadtrand von Gloggnitz, über die Arensteingasse erreichbar, welche parallel zur ÖBB-Bahnlinie verläuft. Die Lage des Grundstücks ist eben, nachdem es sich um eine Eckparzelle handelt, ist eine trompetenförmige Ausnehmung an der Ecke Arensteingasse zur Untere Zeilfeldstraße gegeben. Aufgrund der vorbeiführenden ÖBB-Bahnlinie ist erhöhter Lärmpegel gegeben und handelt es sich um keine ideale Wohnlage. Die umliegenden Grundstücke sind, soweit bekannt, recherchiert und ersichtlich mit Wohn- und Nebengebäuden bebaut. INFRASTRUKTUR: Sämtliche infrastrukturellen Gegebenheiten, wie öffentliche Haltestellen (Bahn und Bus), Gaststätten, Einkaufsmöglichkeiten für den täglichen Gebrauch, Kinderbetreuungseinrichtung, Schulen, Banken, etc. sind in Gloggnitz vorhanden. GEBÄUDEBESCHREIBUNG: Soweit dem beigeschafften Bauakt zu entnehmen, wurde dieses Wohnhaus 1905 errichtet. Pläne aus dieser Zeit liegen mir nicht vor. Vorliegend sind mir Grundrisse des Bestands (nicht zur Gänze der Natur entsprechend) aus dem Jahr 2018. Soweit durch Augenschein feststellbar, wurde das Gebäude restauriert und Instand gesetzt und hat rechteckige Grundrissform. Vorhanden ist ein Erdgeschoß, ein teilweise ausgebauter Dachboden sowie ein kleiner Kellerbereich. Im Erdgeschoß sind folgende Räumlichkeiten vorhanden: Wohn- und Esszimmer, Küche, Vorraum, WC, Zwischenflur, Wirtschaftsraums, Badezimmer / WC sowie Eingang mit Stiege zum Dachgeschoß. Im teilweise ausgebauten Dachboden befinden sich Zimmer 1, Flur, Vorraum bei der Stiege sowie Zimmer 2. Im Keller befindet sich ein Kellerraum. Im rückwärtigen Bereich des Gebäudes befinden sich zwei schliefbare Keller. Die Aufschließung und Erreichung ist zweiseitig gegeben über die Arensteingasse und die die Untere Zeilfeldstraße. Eingänge am Haus bestehen sowohl von der Rück- / Gartenseite, als auch von der Straßenseite aus. Die schliefbaren Keller sind ausschließlich über Türluken vom Garten aus erreichbar. Die Geschoße untereinander, Keller- bis Dachgeschoß, sind über eine Stiege im Haus verbunden. AUSSENANLAGEN, EINFRIEDUNGEN UND VORDÄCHER: Straßenseitig besteht eine Einfriedung aus Sockel- und Pfeilermauerwerk in Schalsteinen, zur Gänze unverputzt ohne Tür und ohne Tore sowie ohne Zaun. Ersichtlich ist straßenseitig der Gaszähler sowie der Stromverteiler und der Hydrant im Nahbereich der Grundgrenze. Zugang und Zufahrt zum Haus von der Arensteingasse sind mit Verbundsteinplatten belegt und mit Gras durchwachsen, an der rechten Seite besteht eine Einfriedung aus einem Betonsockel mit einem Maschenzaun. Gleichfalls eine Einfriedung aus Sockel- und Pfeilermauerwerk in Schalsteinen besteht zur Untere Zeilfeldstraße und ist auch hier kein Tor und keine Tür vorhanden. Auch an der rückwärtigen Grundgrenze in diesem Bereich ist ein Maschenzaun hergestellt. Zugänge zum Haus bestehen von der Straßen- und von der Gartenseite aus. Soweit ersichtlich, besteht der Haupteingang von der Arensteingasse (rechte Seite). In diesem Bereich ist eine Holzkonstruktion mit einer Holzstiege vorhanden. Dieser Bereich ist überdacht und mit Trapezblech gedeckt. An der Rückseite besteht ein kleiner Vorbau mit einem Pultdach und Blecheindeckung. Es sind zwei Zugänge vorhanden, wobei ein Zugang zu einer Kunststeinstiege besteht. Dieser ist überdacht, auf eine Sichtmauerwerkssäule gestützt und als Windschutz eine Metallkonstruktion mit Drahtverglasung vorhanden. Beim zweiten Zugang handelt es sich um eine Vorlegstufe, welche verfliest und nicht überdacht ist. Die nicht bebauten und befestigten Flächen stellen Grünzonen dar, welche verwildert sind.
Grundstücksgröße: 457 m²
Objektgröße: 118,85 m²
Schätzwert: 195.000,00
geringstes Gebot: 97.500,00
Vadium: 19.500,00
Langgutachten: GA_RB Region Wiener Alpen - Steurer.pdfGA_RB Region Wiener Alpen - Steurer.pdf  
Lageplan: MB.jpgMB.jpg   Ortho.jpgOrtho.jpg  
Grundriss: Bestandsplan Seite 1.jpgBestandsplan Seite 1.jpg   Bestandsplan Seite 2.jpgBestandsplan Seite 2.jpg   Bestandsplan Seite 3.jpgBestandsplan Seite 3.jpg  
Fotos: 01 Außenaufnahme.JPG01 Außenaufnahme.JPG   02 Außenaufnahme.JPG02 Außenaufnahme.JPG   03 EG Wohnzimmer.JPG03 EG Wohnzimmer.JPG   04 EG Esszimmer.JPG04 EG Esszimmer.JPG   05 EG Küche.JPG05 EG Küche.JPG   06 EG Wirtschaftsraum.JPG06 EG Wirtschaftsraum.JPG   07 DG Zimmer 1.JPG07 DG Zimmer 1.JPG   08 DG Zimmer 2.JPG08 DG Zimmer 2.JPG   09 Kellerraum.JPG09 Kellerraum.JPG   10 Einfriedung.JPG10 Einfriedung.JPG   11 Außenanlagen.JPG11 Außenanlagen.JPG   12 Terrasse beim Zugang.JPG12 Terrasse beim Zugang.JPG  
Direktlink: https://edikte.justiz.gv.at/    (Eingebundene Vorschaubilder sind embedded content von edikte.justiz.gv.at; die Links verweisen direkt auf die entsprechende externe Seite.)


Stromkosten sparen durch Anbieterwechsel!
Großer Strompreisvergleich für Österreich.
Stromanbieter online vergleichen und
in nur 3 Minuten Vertrag abschließen.
Strompreisvergleich online: Strom
  Ideal für Beträge von 1.000 € bis 75.000 €
Der Ratenkredit aus dem Internet.
Einfach Zuhause die Anbieter vergleichen.
Abschluss online - schnell am Konto!
Hier: Kreditrate und Zinssatz berechnen!
  Supergünstig zum Eigenheim!
Über 60 Anbieter im kostenlosen
Online‑Kreditvergleich (Stand 04/2026)
Die besten Angebote - fix und variabel.
Top-Konditionen - schnell am Konto!

Ortsende Wien  ♦  Niederösterreich  ♦  Burgenland  ♦  Oberösterreich  ♦  Salzburg  ♦  Tirol  ♦  Vorarlberg  ♦  Steiermark  ♦  Kärnten   

| Impressum  |  Datenschutz |