Zwangsversteigerung: 2500 Baden Augustinergasse 16, Rathgasse 25 - Eigentumswohnung

Ortsanfang    Ortsanfang  


Wien  ♦  Niederösterreich  ♦  Burgenland  ♦  Oberösterreich  ♦  Salzburg  ♦  Tirol  ♦  Vorarlberg  ♦  Steiermark  ♦  Kärnten


Information   Details
Edikt: Versteigerung (07.07.2026)
Gericht - Aktenzeichen: BG Baden (040) - 5 E 71/24p
Liegenschaftsadresse: 2500 Baden Augustinergasse 16, Rathgasse 25
Kategorie: Eigentumswohnung
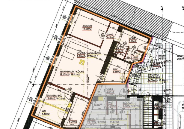
Objektbezeichnung: Wohnung Top 1
Beschreibung: Das bewertungsgegenständliche Wohnungseigentumsobjekt Wohnung Top 1 befindet sich an den Adressen Augustinergasse 16 und Rathgasse 25 in 2500 Baden und ist zugehörig dem Grundbuchskörper in der Katastralgemeinde KG 04017 Leesdorf mit der Einlagezahl EZ 47 sowie dem Grundstück Gst-Nr. .281 mit einer Grundfläche von insgesamt 344 m². Das WEG-Objekt steht im Eigentum von der P & R Dach und Haussanierung GmbH (FN 406394p) mit der B-LNR 3 und dem Anteil 80/352. Auf der Liegenschaft befindet sich ein Mehrfamilienwohnhaus, das in Massivbauweise (Ziegelmauerwerk) als Eckhaus errichtet wurde. In den Jahren 2014 und 2015 erfolgten ein Umbau sowie eine Aufstockung des Wohnhauses, wodurch das Gebäude auf insgesamt 4 Wohneinheiten erweitert wurde. Das bewertungsgegenständliche WEG-Objekt Wohnung Top 1 weist gemäß Nutzwertgutachten vom 20.10.2015 eine Wohnnutzfläche von 78,57 m² auf. Die Wohnung ist im Erdgeschoß im westlichen Bereich des Mehrparteienhauses situiert. Zum Bewertungsstichtag ist das Objekt vermietet. Das Mietverhältnis der Wohnung Top 1 wurde befristet abgeschlossen und hat am 30.06.2023 begonnen und endet am 01.07.2026.
Grundstücksgröße: 344 m²
Objektgröße: 78,57 m²
Schätzwert: 275.700,00
geringstes Gebot: 137.850,00
Vadium: 27.570,00
mitzuversteigerndes Zubehör: Sanitäranlagen & Küche
Wert des Zubehörs: 7.700,00
Langgutachten: 1536_Augustinergasse_16_2500_Baden_15052025_FINAL_A.pdf1536_Augustinergasse_16_2500_Baden_15052025_FINAL_A.pdf  
Lageplan: Lageplan_Augustinerg.jpgLageplan_Augustinerg.jpg  
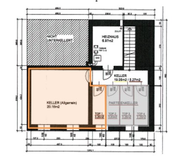
Grundriss: Grundriss_Augustiner.jpgGrundriss_Augustiner.jpg   Grundriss_Keller.jpgGrundriss_Keller.jpg  
Fotos: Front_Augustinerg.jpgFront_Augustinerg.jpg   Gang_Keller.jpgGang_Keller.jpg   Abstellraum_Augustiner.jpgAbstellraum_Augustiner.jpg   WZ_Augustiner.jpgWZ_Augustiner.jpg   WK_Augustiner.jpgWK_Augustiner.jpg   Küche_Augustiner.jpgKüche_Augustiner.jpg   Bad_Augustiner.jpgBad_Augustiner.jpg   SZ_Augustiner.jpgSZ_Augustiner.jpg   Keller_Augustiner.jpgKeller_Augustiner.jpg  
Direktlink: https://edikte.justiz.gv.at/    (Eingebundene Vorschaubilder sind embedded content von edikte.justiz.gv.at; die Links verweisen direkt auf die entsprechende externe Seite.)


Geld sparen durch Gaspreisvergleich.
Gasanbieter vergleichen, wechseln und
damit mehrere hundert Euro sparen.
Kostenlos und unverbindlich - alles online.
Jetzt österreichweit Gaspreise vergleichen.
  Supergünstig zum Eigenheim!
Über 60 Anbieter im kostenlosen
Online‑Kreditvergleich (Stand 04/2026)
Die besten Angebote - fix und variabel.
Top-Konditionen - schnell am Konto!
  Ideal für Beträge von 1.000 € bis 75.000 €
Der Ratenkredit aus dem Internet.
Einfach Zuhause die Anbieter vergleichen.
Abschluss online - schnell am Konto!
Hier: Kreditrate und Zinssatz berechnen!

Ortsende Wien  ♦  Niederösterreich  ♦  Burgenland  ♦  Oberösterreich  ♦  Salzburg  ♦  Tirol  ♦  Vorarlberg  ♦  Steiermark  ♦  Kärnten   

| Impressum  |  Datenschutz |