Zwangsversteigerung: 1130 Wien Hörndlwaldgasse 4 - Einfamilienhaus

Ortsanfang    Ortsanfang  


Wien  ♦  Niederösterreich  ♦  Burgenland  ♦  Oberösterreich  ♦  Salzburg  ♦  Tirol  ♦  Vorarlberg  ♦  Steiermark  ♦  Kärnten


Information   Details
Edikt: Versteigerung (21.01.2026)
Gericht - Aktenzeichen: BG Hietzing (012) - 4 E 3/24y
Liegenschaftsadresse: 1130 Wien Hörndlwaldgasse 4
Kategorie: Einfamilienhaus
Objektbezeichnung: Hälfteanteil an EFH
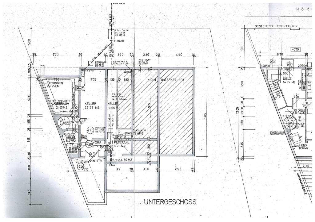
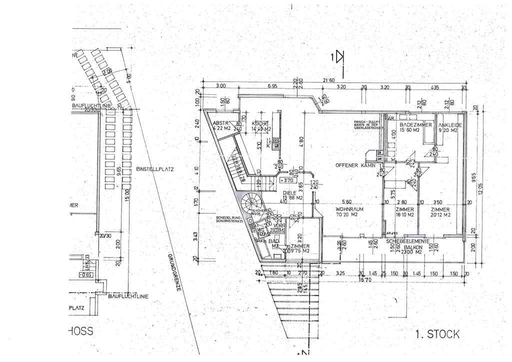
Beschreibung: Mit Beschluss des Bezirksgerichts Hietzing vom 23.8.2024 wurde die Schätzung der 1/2 Liegenschaftsanteile B-LNR 4 an EZ 466, Grundbuch 01201 Auhof angeordnet. Auf dem Grundstück in der Hörndlwaldgasse 4 sind ein Wohnhaus und eine Garage errichtet. Gemäß Bescheid der MA 37 – Bauinspektion Gebietsgruppe West 1160 Wien - vom 21.10.2020 wird der Abbruch des nicht konsensgemäß errichteten Nebengebäudes (Garage) aufgetragen. Die Erschließung des Grundstücks erfolgt über die nördlich gelegene öffentliche Straße (Hörndlwaldgasse). Das Wohngebäude besteht aus Untergeschoss (Teilunterkellerung), Erdgeschoss, Obergeschoss und einem Dachgeschoss mit Dachterrasse.
Grundstücksgröße: 674 m²
Objektgröße: 377,66 m²
Schätzwert: 1.121.000,00
geringstes Gebot: 560.500,00
Vadium: 112.100,00
mitzuversteigerndes Zubehör: ANMERKUNG ZUM SCHÄTZWERT: Dieser bezieht sich auf den 1/2-Anteil B-LNR 4. ZUBEHÖR: Zum Bewertungsstichtag war folgendes Zubehör vorhanden. Im Untergeschoss: •im Raum mit Pooltechnik/Filteranlagen: ein Handwaschbecken und ein Stand-WC in weißer Sanitärkeramik •im Kellerraum/Wellnessbereich: gemauerte Dusche verfliest mit braunen keramischen Fliesen Im Erdgeschoss: •Im Bad/WC (abgeteilt vom Heizraum, angrenzend an südostseitiges Zimmer): Waschbecken mit Spiegel und Unterschrankverbau in weiß, eine Walk-in Dusche verfliest mit keramischen Fliesen und mit Glasabtrennung und Vollglastür, ein Hänge-WC (Vorwandinstallation) •Im Bad (vom Vorraum aus zugänglich): Einbaubadewanne, Duschkabine (Walk-in Dusche) verglast, Hänge-WC, Waschtischmit Verbau •in der Küche: U-förmig angelegte Einbauküche, Ober- und Unterschränke mit weißen Fronten, sowie Kücheneinbaugeräte Im Obergeschoss: •in der Küche: Einbauküche mit Ober- und Unterschränken, cremefarbige Fronten, Einbaugeräte •im Badezimmer: Waschtischverbau, Walk-in-Dusche, Hänge-WC •im Bad/WC (neben Wendeltreppe): Hänge-WC, Handwaschbecken Walk- in -Dusche im Dachgeschoss: •im Bad (neben Vorraum): Waschbecken mit Verbau •im WC: Hänge-WC und Handwaschbecken Laut Angaben der Miteigentümer der je 1/4 Anteile B-LNR 6 und 7 wurden die Sanitärraumausstattung sowie die Einbauküchen auf ihre Kosten nach dem Ankauf der Liegenschaft hergestellt.
Wert des Zubehörs: 52.000,00
Langgutachten: GA_1130 Wien_Hörndlwaldgasse 4_ohneAnh_signed.pdfGA_1130 Wien_Hörndlwaldgasse 4_ohneAnh_signed.pdf   GA_1130 Wien_Hörndlwaldgasse 4_Anhang.pdfGA_1130 Wien_Hörndlwaldgasse 4_Anhang.pdf  
Lageplan: WEB-Lage.jpgWEB-Lage.jpg  
Grundriss: WEB-GrundrissUG.jpgWEB-GrundrissUG.jpg   WEB-GrundrissEG.jpgWEB-GrundrissEG.jpg   WEB-GrundrissOG.jpgWEB-GrundrissOG.jpg   WEB-GrundrissDG.jpgWEB-GrundrissDG.jpg  
Fotos: 20241018_100914.jpg20241018_100914.jpg   20241018_085105.jpg20241018_085105.jpg  
Direktlink: https://edikte.justiz.gv.at/    (Eingebundene Vorschaubilder sind embedded content von edikte.justiz.gv.at; die Links verweisen direkt auf die entsprechende externe Seite.)


Autoversicherung online 12/2025.
Anbieter in ganz Österreich vergleichen
und damit bis zu 700 Euro sparen.
Versicherung bequem online abschließen.
Jetzt Prämie sparen: Autoversicherung
  Supergünstig zum Eigenheim!
Über 60 Anbieter im kostenlosen
Online‑Kreditvergleich (Stand 12/2025)
Die besten Angebote - fix und variabel.
Top-Konditionen - schnell am Konto!
  Ihr Wohnkredit zu Top-Konditionen.
Kompetente, kostenlose Expertenberatung.
Für Hausbau oder Wohnungskauf.
Österreichweiter Marktvergleich.
Rasch und einfach: Wohnkredit-Rechner

Ortsende Wien  ♦  Niederösterreich  ♦  Burgenland  ♦  Oberösterreich  ♦  Salzburg  ♦  Tirol  ♦  Vorarlberg  ♦  Steiermark  ♦  Kärnten   

| Impressum  |  Datenschutz |