Zwangsversteigerung: 4840 Vöcklabruck Bahnhofstraße 40/22 - Eigentumswohnung

Ortsanfang    Ortsanfang  


Wien  ♦  Niederösterreich  ♦  Burgenland  ♦  Oberösterreich  ♦  Salzburg  ♦  Tirol  ♦  Vorarlberg  ♦  Steiermark  ♦  Kärnten


Information   Details
Edikt: Versteigerung (06.05.2026)
Gericht - Aktenzeichen: BG Vöcklabruck (503) - 8 E 8/25h
Liegenschaftsadresse: 4840 Vöcklabruck Bahnhofstraße 40/22
Kategorie: Eigentumswohnung
Objektbezeichnung: Eigentumswohnung W22
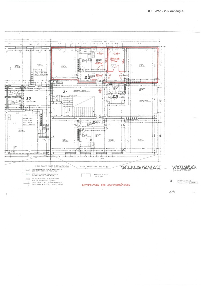
Beschreibung: Der gegenständliche Wohnblock besteht aus einem Kellergeschoss, und sechs Wohngeschossen (EG, 1-5.OG) und einem Dachboden. Das Wohngebäude ist über ein zentrales Stiegenhaus, mit im rechten Winkel angeordneten zweiläufigen geraden Stiegen und einem daneben liegenden Personenaufzug (4 Personen), aufgeschlossen. Der Wohnblock ist in massiver Bauweise ausgeführt; die Dachkonstruktion ist ein Mansarddach. Die gegenständliche Wohnung 22 im 3.Obergeschoss liegt im Nordosten des Wohnhauses und besitzt Fensteröffnungen sowohl im Nordosten wie auch im Südosten. Durch die nördliche Ausrichtung der Wohnung ist die Wohnung durch die ÖBB-Westbahnstrecke lärmbeeinträchtigt. KFZ-Abstellplätze sind keine vorhanden.
Grundstücksgröße: 1.863 m²
Objektgröße: 69,27 m²
Schätzwert: 171.400,00
geringstes Gebot: 85.700,00
Vadium: 17.140,00
mitzuversteigerndes Zubehör: -------
Langgutachten: S25C-1i25112712560.pdfS25C-1i25112712560.pdf  
Lageplan: S25C-1i25112712481.jpgS25C-1i25112712481.jpg  
Grundriss: S25C-1i25112712480.jpgS25C-1i25112712480.jpg  
Fotos: S25C-1i25112712460.jpgS25C-1i25112712460.jpg   S25C-1i25112712470.jpgS25C-1i25112712470.jpg  
Direktlink: https://edikte.justiz.gv.at/    (Eingebundene Vorschaubilder sind embedded content von edikte.justiz.gv.at; die Links verweisen direkt auf die entsprechende externe Seite.)


Autoversicherung online 04/2026.
Anbieter in ganz Österreich vergleichen
und damit bis zu 700 Euro sparen.
Versicherung bequem online abschließen.
Jetzt Prämie sparen: Autoversicherung
  Supergünstig zum Eigenheim!
Über 60 Anbieter im kostenlosen
Online‑Kreditvergleich (Stand 04/2026)
Die besten Angebote - fix und variabel.
Top-Konditionen - schnell am Konto!
  Ideal für Beträge von 1.000 € bis 75.000 €
Der Ratenkredit aus dem Internet.
Einfach Zuhause die Anbieter vergleichen.
Abschluss online - schnell am Konto!
Hier: Kreditrate und Zinssatz berechnen!

Ortsende Wien  ♦  Niederösterreich  ♦  Burgenland  ♦  Oberösterreich  ♦  Salzburg  ♦  Tirol  ♦  Vorarlberg  ♦  Steiermark  ♦  Kärnten   

| Impressum  |  Datenschutz |