Zwangsversteigerung: 9972 Virgen Eschenweg 6 - Zweifamilienhaus

Ortsanfang    Ortsanfang  


Wien  ♦  Niederösterreich  ♦  Burgenland  ♦  Oberösterreich  ♦  Salzburg  ♦  Tirol  ♦  Vorarlberg  ♦  Steiermark  ♦  Kärnten


Information   Details
Edikt: Versteigerung (15.12.2025)
Gericht - Aktenzeichen: BG Lienz (850) - 30 E 10/25k
Liegenschaftsadresse: 9972 Virgen Eschenweg 6
Kategorie: Zweifamilienhaus
Objektbezeichnung: Wohnhaus mit Garage
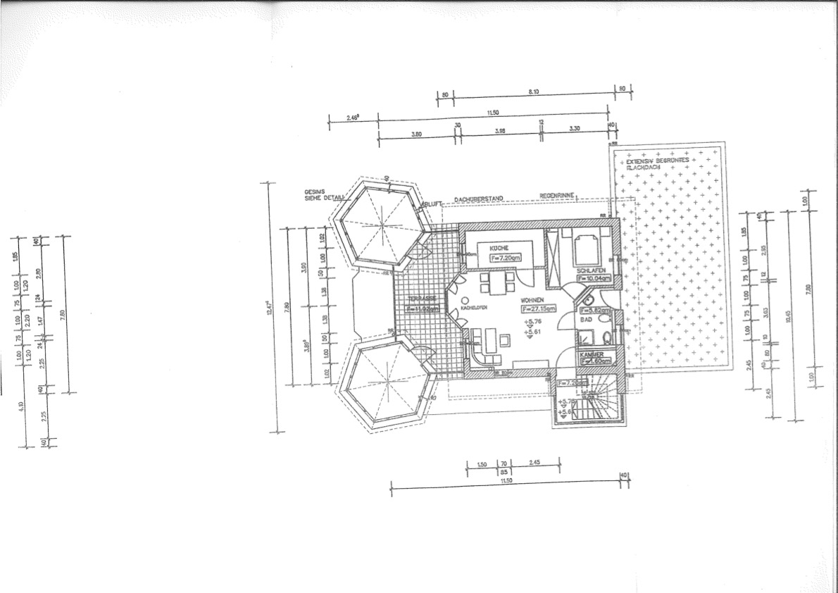
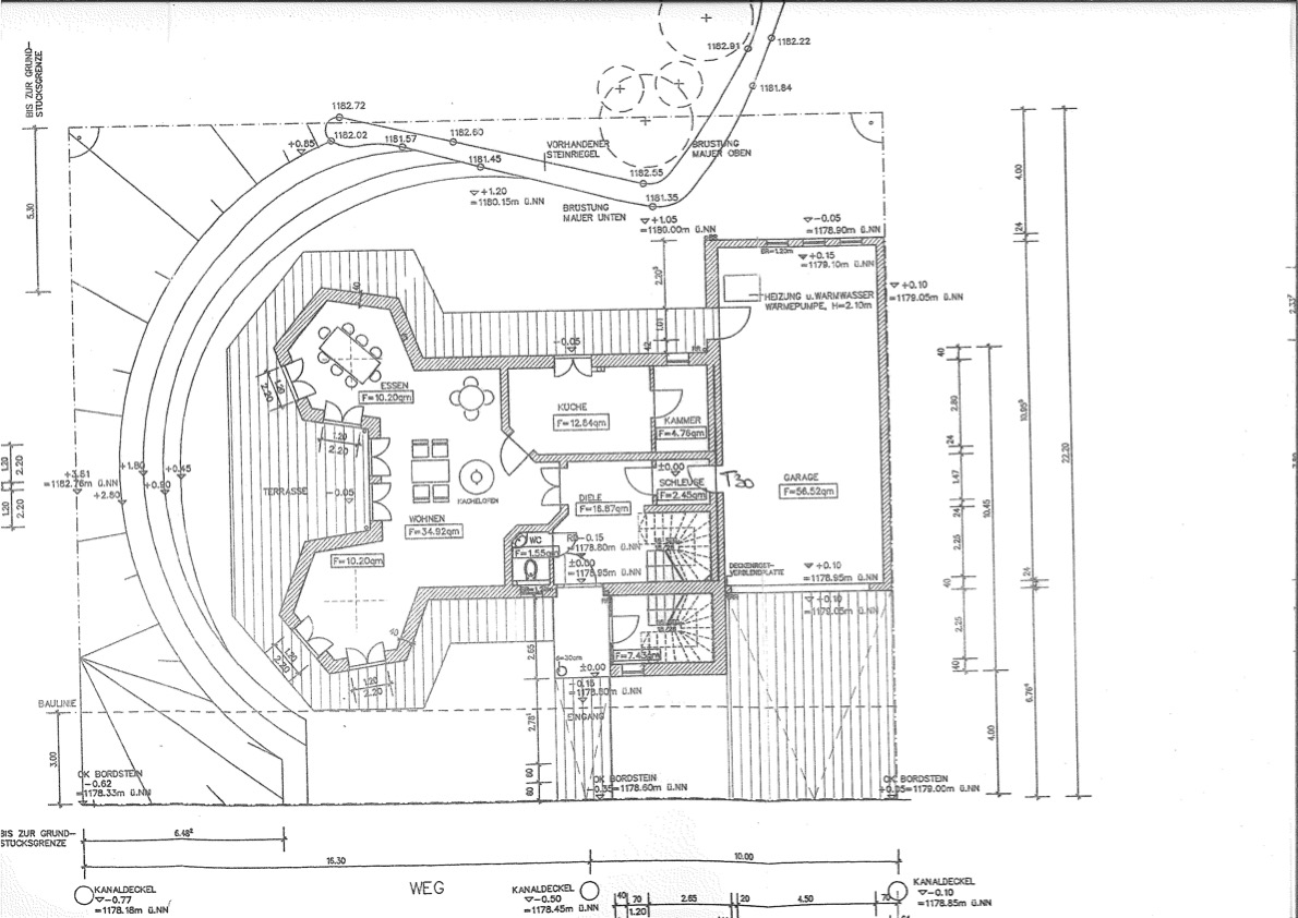
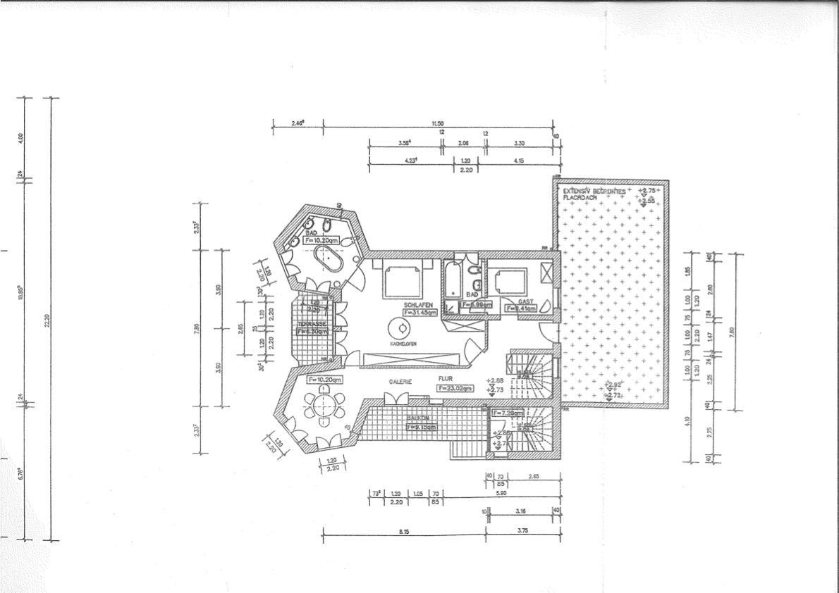
Beschreibung: Das Wohnhaus wurde als Zweifamilienhaus mit Garage in Massivbauweise errichtet. Es besteht aus Erd-, Ober- und Dachgeschoss und ist mit einem Satteldach mit der Firstrichtung O/W und zwei Zeltdächern abgedeckt. Das Gebäude weist ein Grundrissmaß von rd. 14m Länge und 10,5m Breite auf, wobei Gebäudeecken turmartig ausgebildet sind. Im Erdgeschoss und im 1. Obergeschoss befindet sich eine selbständige Wohneinheit, diese ist ebenerdig erreichbar und über eine interne Treppe mit dem Obergeschoss verbunden. Die zweite Wohneinheit befindet sich im Dachgeschoss.
Grundstücksgröße: 580 m²
Objektgröße: 215,47 m²
Schätzwert: 292.000,00
geringstes Gebot: 146.000,00
Vadium: 29.200,00
Langgutachten: L_15_23 Gutachten gesamt_signed.pdfL_15_23 Gutachten gesamt_signed.pdf  
Lageplan: Lageplan-page-00001.jpgLageplan-page-00001.jpg  
Grundriss: 0901_Bauplan EG.jpg0901_Bauplan EG.jpg   0901_Bauplan OG.jpg0901_Bauplan OG.jpg   0901_Bauplan DG.jpg0901_Bauplan DG.jpg   0901_Bauplan Schnitt.jpg0901_Bauplan Schnitt.jpg  
Fotos: Bild 1.jpegBild 1.jpeg   Bild 2.jpegBild 2.jpeg   Bild 3.jpegBild 3.jpeg   Bild 4.jpegBild 4.jpeg  
Direktlink: https://edikte.justiz.gv.at/    (Eingebundene Vorschaubilder sind embedded content von edikte.justiz.gv.at; die Links verweisen direkt auf die entsprechende externe Seite.)


Top Versicherungsschutz für Ihre Immobilie.
Durch online-Preisvergleich zur besten Eigenheimversicherung.
Top aktuelle Angebote: Stand 12/2025
Online-Test: Eigenheimversicherung
  Die Finanzierung für Ihren Hausbau:
Baufinanzierung & Baukredit-Rechner.
Maßgeschneidert und Top-Konditionen.
Schnelle & unbürokratische Abwicklung.
Monatsrate und Zinsen: Online-Rechner
  Autoversicherung online 12/2025.
Anbieter in ganz Österreich vergleichen
und damit bis zu 700 Euro sparen.
Versicherung bequem online abschließen.
Jetzt Prämie sparen: Autoversicherung

Ortsende Wien  ♦  Niederösterreich  ♦  Burgenland  ♦  Oberösterreich  ♦  Salzburg  ♦  Tirol  ♦  Vorarlberg  ♦  Steiermark  ♦  Kärnten   

| Impressum  |  Datenschutz |